Garden Design Services
Design Process
1: Consultation
The design process begins with a consultation. This is a meeting in the garden to explore how you use the garden, what you’d like to achieve, your inspirations and ideas as well as budget and timeframe. These discussions form basis of the project brief.
2: Survey and Analysis
The next step is collection of information about your garden. This includes physical measurements, shade analysis and a soil survey as well as checking out what’s already growing there. Carried out on site and online. For larger gardens, a physical survey may be recommended.
3: Outline Design
The outline design or masterplan is the designer’s scheme for your garden. It is a 2D image which you will receive with perspectives or 3D images, elevations, a mood board and material palette. Your feedback at this stage is essential and a very welcome aspect of the design process. A final design will be agreed before moving ahead to tender.
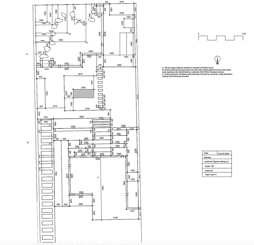
4: Detail Drawings
Technical specifications and detail drawings help your contractor to quote accurately and build the garden to the design. Drawings include construction of paths, steps, terraces and driveways as well as planting. The designer puts together a complete information pack for the tender and invites two or three contractors to quote.
5: Build
At this point, the design is handed over to the contractor for construction.
The designer is on hand to support the contractor and can be retained to oversee the build or project manage.
6: Maintenance
Keeping your garden looking fantastic depends on good maintenance.
Whether you do it yourself or find a local maintenance team, the designer will help you work out a plan for the year ahead
What is an outline design or masterplan?
A 2D digital drawing showing the outline design for the garden including:
Boundaries
Paths and walls
Hedges
Terraces
Steps
Entrances and exits
Driveways
Garage
Storage and compost
Trees
Shrubs
Borders
Lawns and meadow
Water features
Productive beds
Seats
Pots and tubs
Sculpture
Firepit
Rill
Position of house & other buildings









